Project

Interior

Interior

상업공간 육회바른연어 군포산본수리점 인테리어

페이지 정보

profile_image
작성자 최고관리자 (112.♡.99.91)
댓글 8건 조회 119,499회 작성일 24-08-24 09:33

본문



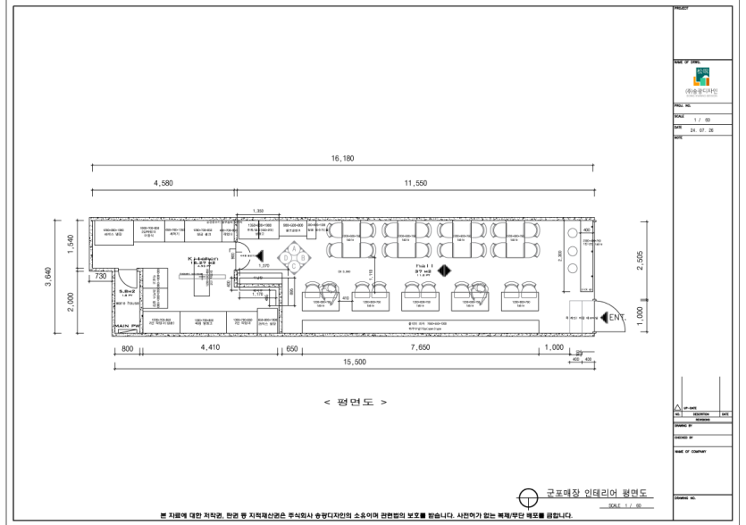
공 사 명  : 육회바른연어 프렌차이즈 인테리어

공사면적 : 18PY 

공사기간 : 20~22일 소요 

투입공정 : 철거, 목공, 전기, 통신, 페인트, 필름, 바닥, 미장, 주방설비, 공조덕트, 가구공사외 

좌석테이블수 : 9 EA(붙박이의자 테이블포함)

 
  4f10d220a2b2f61b755fbd1834db7b3f_1724461589_6115.JPG
 

4f10d220a2b2f61b755fbd1834db7b3f_1724459177_5762.JPG


4f10d220a2b2f61b755fbd1834db7b3f_1724459192_9066.JPG


4f10d220a2b2f61b755fbd1834db7b3f_1724459198_2478.JPG


4f10d220a2b2f61b755fbd1834db7b3f_1724459209_6728.JPG


4f10d220a2b2f61b755fbd1834db7b3f_1724459228_812.JPG


4f10d220a2b2f61b755fbd1834db7b3f_1724459247_6638.JPG


4f10d220a2b2f61b755fbd1834db7b3f_1724459251_7285.JPG


4f10d220a2b2f61b755fbd1834db7b3f_1724459271_3737.JPG



4f10d220a2b2f61b755fbd1834db7b3f_1724461487_5748.png 



 4f10d220a2b2f61b755fbd1834db7b3f_1724461359_726.jpg 




댓글목록

profile_image

꽁냥꽁냥님의 댓글

꽁냥꽁냥 아이피 (112.♡.99.91) 작성일

육회바른연어 너무 맛있어요~ 인테리어 굿! 맛도 굿! 가격대비 가성비 굿!

profile_image

태백님의 댓글

태백 아이피 (124.♡.84.16) 작성일

와~~~~

profile_image

대발이님의 댓글

대발이 아이피 (118.♡.73.175) 작성일

모던하니 술한잔할맛 나겠네요

profile_image

창업예비아빠님의 댓글

창업예비아빠 아이피 (121.♡.63.30) 작성일

공사견적문의드립니다.

profile_image

나홀로님의 댓글

나홀로 아이피 (61.♡.172.127) 작성일

프로세스가 꼼꼼하네요~ 견적문의드려봅니다.

profile_image

예창님의 댓글

예창 아이피 (61.♡.172.127) 작성일

창업준비중입니다.~ 18평 견적문의드려요

profile_image

달타냥님의 댓글

달타냥 아이피 (121.♡.58.214) 작성일

먹음직스런 육회 최고죠~

profile_image

김시님의 댓글

김시 아이피 (121.♡.58.221) 작성일

모던하니 음식맛 나겠어요